Zadávací dokumentace

Zadávací řízení: Domov pro seniory a dům s pečovatelskou službou Mariánské Lázně - výměna lůžkového evakuačního výtahu v budově A

Informace o dokumentu

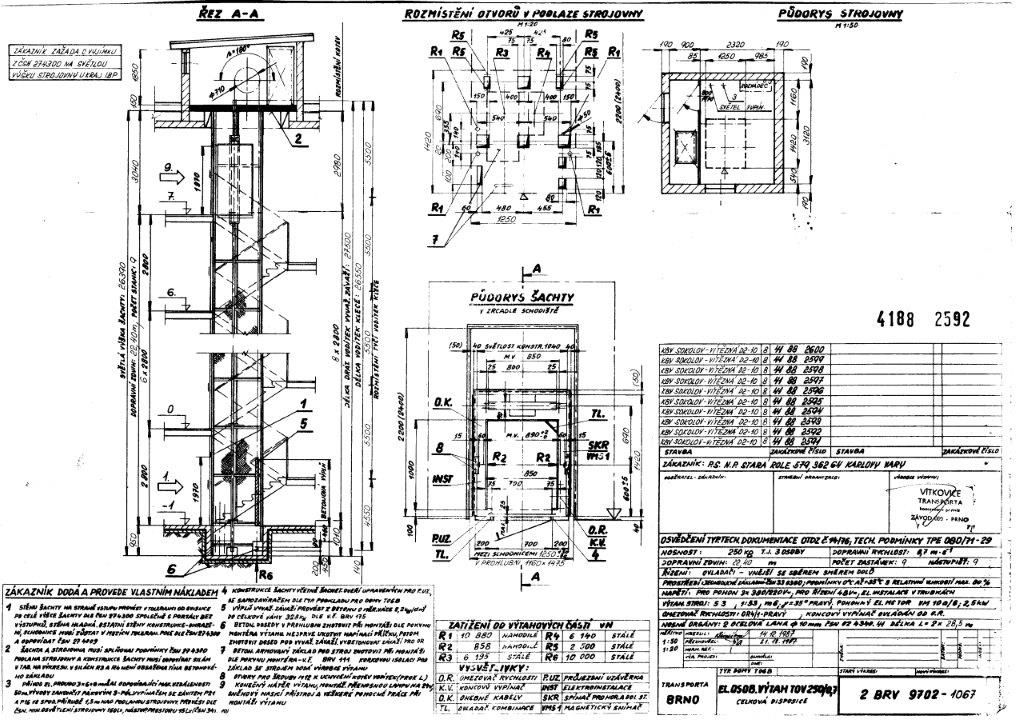
Název: Osobní výtah půdorys - řez
Popis: Osobní výtah půdorys - řez

Aktuální verze souboru

Jméno souboru: Obrázek JPEG 17_2_2023_Osobní výtah půdorysřez.jpg
Velikost: 186,78 KiB
Aktuální verze souboru: 17.02.2023 13:46:40
Otisk MD5: 231608c9d5b56f80367ef72c00e167f5
Otisk SHA256: 26abf89f1d58c27a15b49a48359be1cb39160386e04174e636eab6cea45f9d84

Historie souboru

Datum Název Popis Typ dokumentu Jméno souboru Velikost
V 17.02.2023 13:46:40 Osobní výtah půdorys - řez Osobní výtah půdorys - řez zadávací dokumentace - 17_2_2023_Osobní výtah půdorysřez.jpg 186,78 KiB