Veřejná zakázka: Domov pro seniory a dům s pečovatelskou službou Mariánské Lázně - výměna lůžkového evakuačního výtahu v budově A

Informace o veřejné zakázce

fáze zadávacího řízení Zadáno
Zakázka byla zadána.
DBID: 586
Systémové číslo: P23V00000011
Datum zahájení: 02.02.2023
Nabídku podat do: 10.03.2023 09:00

Název, druh veřejné zakázky a popis předmětu

  • Název: Domov pro seniory a dům s pečovatelskou službou Mariánské Lázně - výměna lůžkového evakuačního výtahu v budově A
  • Druh veřejné zakázky: Stavební práce

Stručný popis předmětu:
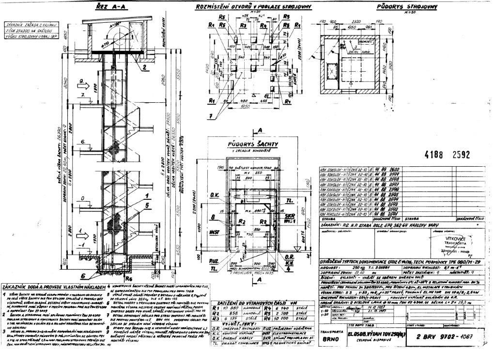
Předmětem plnění veřejné zakázky je dodávka a výměna lůžkového evakuačního výtahu u kuchyně v osmipodlažní (jedno podzemní podlaží a sedm nadzemní podlaží) budově A Domova pro seniory a domu s pečovatelskou službou v Mariánských Lázních – Úšovicích, Tepelské ulici č.p. 752, parcela p.č. st.2249 k.ú. Úšovice včetně všech doprovodných prací nutných pro řádnou realizaci výměny.

Výtah bude sloužit pro dopravu osob vč. osob na transportním lůžku, příp. pro dopravu materiálu.

Postup zadání, předpokládaná hodnota

  • Postup: VZMR, min. 3, uveřejňuje se
  • Režim veřejné zakázky: VZ malého rozsahu
  • Předpokládaná hodnota: 1 915 000 Kč bez DPH

Zadavatel

  • Úřední název: Město Mariánské Lázně
  • IČO: 00254061
  • Poštovní adresa:
    Ruská 155
    Mariánské Lázně
    353 01
  • Název oddělení: Oddělení veřejných zakázek
  • Id profilu zadavatele ve VVZ: 60051181

Adresa kontaktního místa

Nabídky, resp. žádosti o účast podávat na:
prostřednictvím elektronického nástroje E-ZAK (https://zakazky.muml.cz)

Kontakt

Odpovědné veřejné zadávání

Položky předmětu (CPV)

Zadávací dokumentace

Vysvětlení, doplnění, změny zadávací dokumentace

Veřejné dokumenty

Formuláře

URL odkazy

Plnění smlouvy na základě veřejné zakázky